あの靴工場リノベーションのすぐお隣に出来た
シェアが可能なアトリエ古民家 k*a*k+a。
「k*a*k+a」はkiyokawa atelier kominka +art
の略で(カカと読みます)

「シゴト場はどんな感じ?」と聞かれたらこう答えます。
「古民家を改装した格安シェアアトリエなんだ」
「面白そう!そんな物件どこにあるの?」
あるんです。すぐそばに
あの靴工場リノベ「Wall apartment」のお隣に。
東京スタイルCCのリノベプロジェクト
今度は築50年超えの古民家です。
k*a*k+aは3人の女性クリエーターたち
のアート作品を随所に織り交ぜながら古民家を
趣きたっぷりにリノベーションしたシェア空間。
シェアといってもシェアハウスではなく
シェアアトリエになります。
違いはカンタン。ズバリ住めるか住めないか。
他は大体同じですね
個室の他に皆で集えるリビングがあって
ソファやテーブル、家電からシャワー・洗濯設備まで
大抵のものが揃ってます。













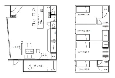
左が1階隠し部屋賃料なんと19,600円(エアコン、鍵なし)、右が2階4室
2階は上から 成約済円、37,000円、37,000円、成約済円
古民家kakaは専用の入口がございますが、
現在は靴工場リノベーションのウォールアパートメント
のメインエントランスより出入り可能となっています。
広いラウンジも簡単な打合せであれば使用可能です。
東京メトロ日比谷線
南千住駅歩10分
賃料 37,000円
管理共益費 別
面積 12㎡
敷金2ヶ月/礼金2ヶ月
築年月 年月
構造 木造2階建て
入居 即日
備考
シェアアトリエ
用途相談
















